Contact the agency
Back to results
Sandton Incomplete
Sandton Incomplete
Sandton Incomplete
Sandton Incomplete
Sandton Incomplete
Sandton Incomplete
Sandton Incomplete
Sandton Incomplete
Sandton Incomplete
Sandton Incomplete
Add to favourites
$150,000
Share
Location Sandton Park, Harare West, Harare
Bedrooms 5
Bathrooms 3
385 m²
Land area 3,196 m²
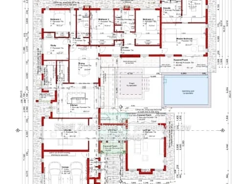
Exceptional investment opportunity in Sandton Park, Harare West — spacious 5-bedroom, 3-bath home on a generous 3,196 m² stand with 385 m² under roof. Set in an L-shaped plan, this property is currently a plastered shell ready for finishing, giving you the freedom to create your dream home or a high-value rental conversion. The exterior photos show a tiled roof with multiple gables, wide window openings and a double-bay garage entrance (see photos). Interiors reveal high ceilings with exposed roof trusses and a built-in fireplace feature in the lounge — excellent bones for a bright, airy reception area. The layout includes a main en suite, a separate study/office and an internal courtyard that would frame a landscaped garden or a pool as indicated on the floor plan (floor plan included). Ample flat grounds offer space for entertainment areas, established gardens, additional outbuildings or secure boundary walls. With a large frontage and room for vehicular access, the double garage and parking are ideal for family life or tenants. Perfect for buyers who want to finish to their own specification and capture strong neighbourhood demand in Sandton Park. Contact us to arrange a site visit.

Amenities

Garage
Garage
Garden
Garden
Main En Suite
Main En Suite
Study/Office
Study/Office

Explore home offers

Valuation | Get a professional valuation
View â–¾

Average price by bedroom

Average price of properties in Sandton Park
Type
Price
2 Bedrooms
$82,500
3 Bedrooms
$168,000
4 Bedrooms
$177,500
5+ Bedrooms
$235,000

Neighborhood

* Approx. location of property
You are contacting
Notify me of similar properties Notification Report Listing Listing ref: SEF239487

Similar Properties for Sale

5 Bedroom House

Harare West
5
5

4 Bedroom House

Harare West
4
1

4 Bedroom House

Harare West
4
2

5 Bedroom House

Harare West
5
2

6 Bedroom House

Harare West
6
2

5 Bedroom House

Harare West
5
2